Sukoon
Sukoon Luxury Floors is a premium residential project located at D-50, Nangal Dewat, Vasant Kunj, New Delhi-110070, offering well-planned smart homes with modern interiors, quality fittings, and comfortable living spaces. Developed by Rana Infra, the project features 4 BHK residences on an L-shaped corner plot in South Delhi, with each home offering approximately 2700 sq. ft. of spacious living surrounded by lush greenery for a peaceful lifestyle.
These premium residences offer excellent privacy, where the design is modern, functional, and thoughtfully planned. The greatest luxury is its address-well connected to the city’s most important destinations, with hotels, schools, hospitals, and malls located nearby, making everyday living truly convenient and refined.
Project Facts
- Plot Size: 300 sq. yd. (approx)
- Structure: Stilt + 4 Residential Floors
- Residences: 1 Home per floor for complete privacy
- Configuration: 4 BHK + Drawing + Dining + Pooja + Powder + Kitchen + Utility
- Approx. Carpet Area per Floor: ~2700 sq.ft.
- Balconies: Front 6’ wide, Side 5’ wide
- Orientation: Corner plot with front & side road, L-shaped footprint
Parking or Lobby Floor Plan
The full picture — a L-shaped plot of 300 sq. yds. designed so that light, air and privacy never compete. The layout says everything about what was never compromised.
Ground Floor Plan
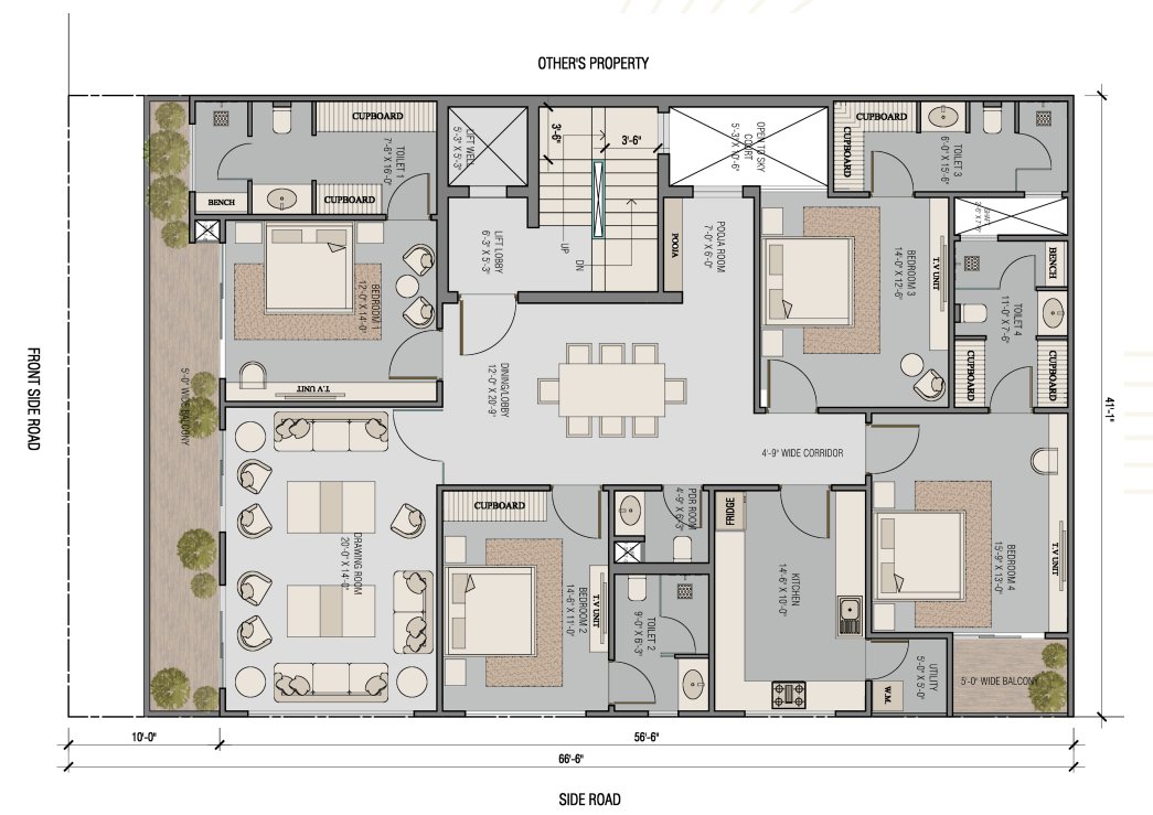
Your home begins here. A 4 BHK residence of approximately 2,700 sq. ft. where the drawing room, dining and balcony flow as one — and every bedroom has its own quiet corner.
Typical Floor Plan
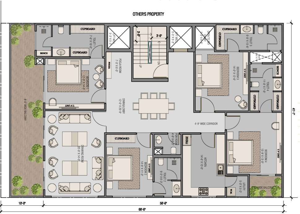
A home that finds its rhythm between the energy below and the stillness above. Every room is placed with intention, every view framed with care.
AMENITIES
Everything You Need,
Within Reach
Hotels
- The Grand New Delhi - Vasant Kunj
- JW Marriott Hotel New Delhi Aerocity
- Pullman New Delhi Aerocity
- Novotel New Delhi Aerocity
- Roseate House New Delhi
Schools
- Delhi Public School, Vasant Kunj
- Vasant Vallery School
- GD Goenka Public School, Vasant Kunj
- Ryan International School, Vasant Kunj
- Bhatnagar International School, Vasant Kunj
Hospitals
- Fortis Flt Lt Rajan Dhall Hospital, Vasant Kunj
- Indian Spinal Injuries Centre, Vasant Kunj
- Institute of Liver & Biliary Sciences(ILBS), Vasant Kunj
- Cronus Multispeciality Hospital, Chattarpur
- Max Super Speciality Hospital, Saket
Malls
- DLF Promenade Mall
- DLF Emporio
- Ambience Mall
- Vasant Square Mall
Visual Showcase
Experience the
Property in Detail
Reach US
Address:
D-55 Nangal Dewat, Sec-D, Vasant Kunj New Delhi-110070



